top of page
INTERNATIONAL
Create Your First Project
Start adding your projects to your portfolio. Click on "Manage Projects" to get started
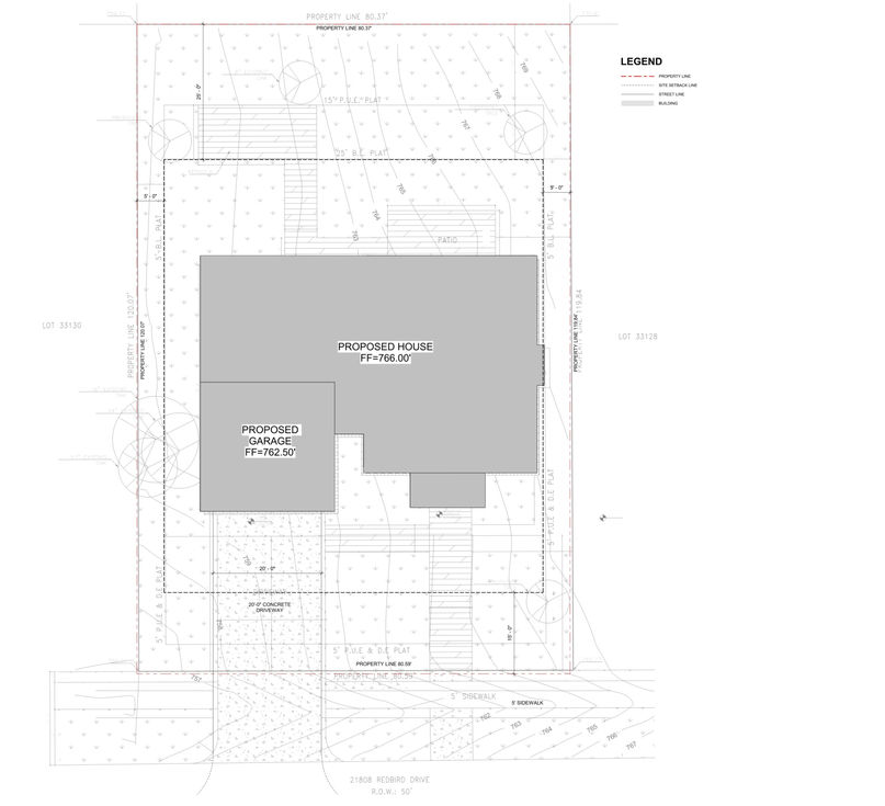
21808 RedBird Dr
Project type
Residence (New Construction)
Date
December, 2023
Location
Leander, TX
Area
1,528.5 Sq Ft
Client
In Association with Ar. Eric
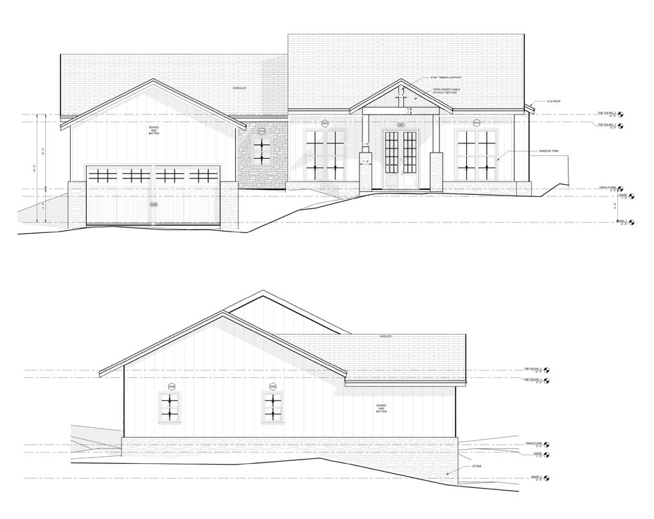
a modern and stylish 3BHK residence nestled on a picturesque contour site, home is designed to provide comfort, functionality, and a harmonious connection to the landscape. The adjoining dining area and Great room flows seamlessly into the living room, creating an inviting space for entertaining guests or enjoying family gatherings.
This residence on a contour site is not just a home; it's a reflection of modern living that celebrates the beauty of its natural surroundings while providing a haven of comfort and sophistication for its residents.
bottom of page













