top of page
INTERNATIONAL
Create Your First Project
Start adding your projects to your portfolio. Click on "Manage Projects" to get started
297 5TH Street
Location
USA
Date
2024
Project type
Residence (Addition and Renovation)
Area
2,763 Sq Ft
Client
In Association with Ar. Joseph
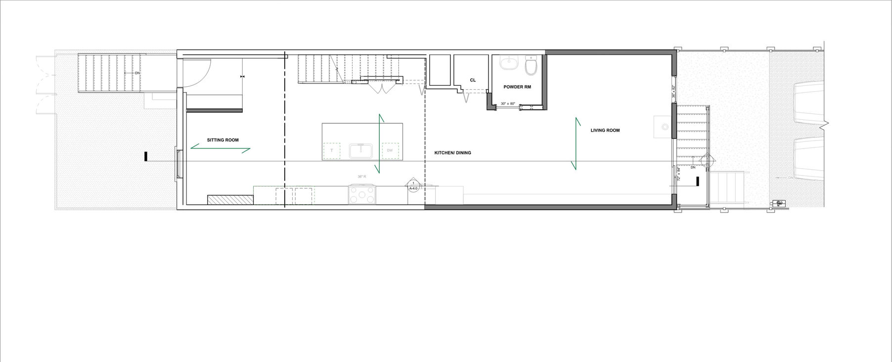
At 297 5th Street, our project aims for a dynamic transformation. The first floor welcomes a formal entry and a rear two-story addition with an expanded kitchen. The basement transforms into a well-lit dining and living area, while the second floor offers three bedrooms, a kids' play area, workout space, and storage. The addition includes a new primary bedroom with ensuite and a roof deck for tranquil moments. The backyard may house a hydraulic car lift for innovative parking solutions, optimizing space and functionality.
bottom of page























