INTERNATIONAL
Create Your First Project
Start adding your projects to your portfolio. Click on "Manage Projects" to get started
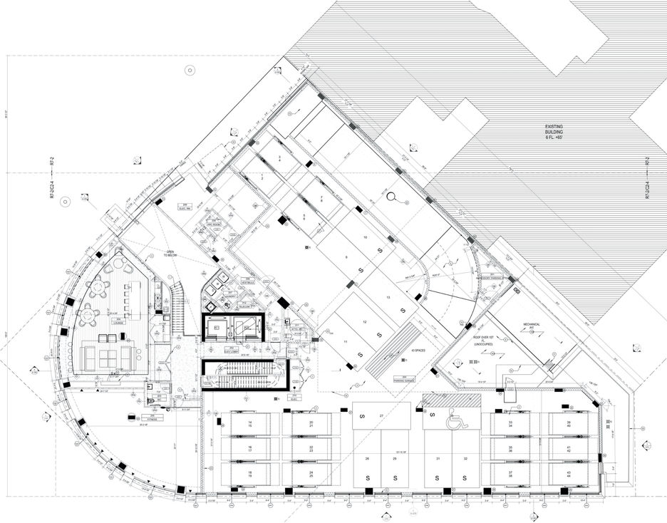
4560 Broadway
Project type
Mixed Use (New Construction)
Date
2022
Location
Broadway, NY
Area
62,540 Sq Ft
Client
In Association with Ar. Julio and Ar. Priya
A landmark of architectural magnificence at Broadway's premier apartment project.
Nestled in the heart of New York City's iconic district, our 1 and 2BHK residences boast a fusion of visionary design and urban luxury.
Envisioned by architects, Ar. Julio and Ar. Priya, these residences are a testament to innovative architecture and modern aesthetics.
The crafted interiors that seamlessly blend functionality with style, inviting natural light and captivating city views into every space.
The allure of these homes extends beyond their architectural grandeur.
Where architectural brilliance meets urban sophistication.
The epitome of New York City living at Broadway residence, where every detail is designed to inspire.

































